مصنوعات
باکس ٹائپ فکسڈ میٹل بند سوئچ گیئر
  • باکس ٹائپ فکسڈ میٹل بند سوئچ گیئرباکس ٹائپ فکسڈ میٹل بند سوئچ گیئر
  • باکس ٹائپ فکسڈ میٹل بند سوئچ گیئرباکس ٹائپ فکسڈ میٹل بند سوئچ گیئر
  • باکس ٹائپ فکسڈ میٹل بند سوئچ گیئرباکس ٹائپ فکسڈ میٹل بند سوئچ گیئر
  • باکس ٹائپ فکسڈ میٹل بند سوئچ گیئرباکس ٹائپ فکسڈ میٹل بند سوئچ گیئر

باکس ٹائپ فکسڈ میٹل بند سوئچ گیئر

کیکسن چین میں ایک معروف پاور ٹرانسمیشن اور ٹرانسفارمیشن آلات تیار کرنے والا ہے ، اور اس کا XGN2-12 ٹائپ باکس ٹائپ فکسڈ میٹل بند سوئچ گیئر 3-10KV سنگل بس اور بائی پاس سسٹم کے ساتھ سنگل بس میں بجلی کی توانائی حاصل کرنے اور تقسیم کرنے کے لئے ہائی وولٹیج آلات کے مکمل سیٹ کے طور پر استعمال ہوتا ہے۔ مصنوعات کے تمام اشاریہ GB 3906 "3-35KV AC میٹل منسلک سوئچ" ، IEC298 تکنیکی معیار اور "پانچ روک تھام" کی ضروریات کو پورا کرتے ہیں۔
ماڈل: XGN2-12
برانڈ : KEXR

conditions حالات کا استعمال

X XGN2-12 ٹائپ باکس ٹائپ فکسڈ میٹل بند سوئچ گیئر کا محیطی درجہ حرارت ہونا چاہئے

-25 ~ 40 ℃ (انڈور)

▶ اونچائی: 1000m سے نیچے

daily روزانہ اوسط نسبتا نمی 95 ٪ سے زیادہ نہیں ہے ، اور ماہانہ اوسط نسبتا نمی 90 ٪ سے زیادہ نہیں ہے

▶ زلزلے 8 سے تجاوز نہیں کریں گے

X XGN2-12 ٹائپ باکس ٹائپ فکسڈ میٹل بند سوئچ گیئر کو آگ ، دھماکے ، سنگین آلودگی ، کیمیائی سنکنرن اور پرتشدد کمپن سے پاک جگہ پر نصب کیا جائے گا۔


● تکنیکی پیرامیٹر

نمبر

آئٹم

یونٹ

ڈیٹا

1

ریٹیڈ وولٹیج

کے وی

3،6،10

2

زیادہ سے زیادہ آپریٹنگ ورک وولٹیج

کے وی

3.5،8.9،11.5

3

ریٹیڈ کرنٹ

A

5 ~ 3000

4

ریٹیڈ بریک کرنٹ

KA

16،20،31.5،40

5

ریٹیڈ شارٹ سرکٹ بند ہونے والا موجودہ

KA

40،50،80،100

6

ریٹیڈ شارٹ سرکٹ متحرک مستحکم موجودہ

KA

40،50،80،100

7

درجہ بند گرمی مستحکم موجودہ

KA

16،20،31.5،40

8

درجہ بندی گرمی مستحکم وقت

S

4

9

آئی پی ڈگری


IP2X

10

بس سسٹم


سنگل بس یا بائی پاس کے ساتھ

11

آپریٹنگ طریقہ


برقی مقناطیسی یا موسم بہار کی توانائی کے ذخیرہ کرنے کی قسم

12

طول و عرض (چوڑائی*گہرائی*اونچائی)

ملی میٹر

1100*1200*2650 (1000a کے نیچے)

13

وزن

کلوگرام

1000


◆ اینٹی ایرر ڈیوائس

"پانچ روک تھام" کا کام سرکٹ بریکر کو غلطی سے تقسیم اور بند ہونے سے روکنا ہے۔ آن لوڈ پر غلط استعمال اور الگ تھلگ سوئچ کی غلط فہمی کو روکیں۔ جب اس سے معاوضہ لیا جاتا ہے تو گراؤنڈنگ سوئچ کو بند ہونے سے روکیں۔ گراؤنڈنگ سوئچ کو بند ہونے پر آن کرنے سے روکیں۔ غلطی سے چارج وقفے میں داخل ہونے سے روکیں۔

یہ XGN2-12 ٹائپ باکس ٹائپ فکسڈ میٹل بند سوئچ گیئر لازمی مکینیکل لاکنگ وضع کو اپناتا ہے ، اور لاکنگ ڈیوائس اہم اجزاء پر مشتمل ہے جیسے سپورٹ ، ڈسک ، پینل ، لاکنگ پلیٹ ، ہینڈل ، کنیکٹنگ راڈ ، وغیرہ ، جس میں قابل اعتماد کارکردگی ، مکمل افعال ، آسان ڈھانچے اور آسان آپریشن کی خصوصیات ہیں۔

red سرخ اور سبز فلاپ کے ساتھ کنٹرول سوئچ (کے ڈبلیو سوئچ) سرکٹ بریکر اسکیم میں سرکٹ بریکر کو غلطی سے تقسیم اور بند ہونے سے روکنے کے لئے استعمال کیا جاتا ہے۔

▶ سرکٹ بریکر واقعی ٹوٹ جانے کے بعد ہی چھوٹے ہینڈل کو "ورکنگ" پوزیشن سے نکالا جاسکتا ہے اور "بریکنگ اینڈ لاکنگ" پوزیشن کی طرف رجوع کیا جاسکتا ہے۔ الگ تھلگ سوئچ کھولنے اور بند کرنا ؛ 7 بوجھ منقطع سوئچ کو کھولنے اور بند ہونے سے روکیں۔ تالے لگانے اور اینٹی لاکنگ کی الٹ جانے سے دوگنا اینٹی مساوات کے افعال ہوتے ہیں ، یعنی ، جب چھوٹا ہینڈل "توڑنے والے تالے" کی پوزیشن میں ہوتا ہے تو ، صرف اوپری اور نچلے منقطع افراد کو آن اور آف کیا جاسکتا ہے ، لیکن سرکٹ توڑنے والے کو آن اور آف نہیں کیا جاسکتا ہے ، اس طرح سرکٹ توڑنے والے کی غلط استعمال سے بچنا پڑتا ہے۔

▶ جب سرکٹ بریکر اور اوپری اور نچلے سے رابطہ کرنے والے بند حالت میں ہوتے ہیں ، اور چھوٹا ہینڈل "کام کرنے" کی پوزیشن میں ہوتا ہے تو ، سامنے اور عقبی کابینہ کے دروازے نہیں کھولے جاسکتے ہیں ، تاکہ غلطی سے انہیں براہ راست وقفہ میں داخل ہونے سے روک سکے۔

▶ جب اوپری اور نچلے منقطع کرنے والے نہیں کھولے جاتے ہیں تو ، گراؤنڈنگ سوئچ کو بند نہیں کیا جاسکتا ، اور چھوٹے ہینڈل کو "بحالی" پوزیشن سے "بحالی" پوزیشن پر نہیں موڑ سکتا ہے ، جو گراؤنڈنگ تار کو بجلی سے لٹکانے سے روک سکتا ہے۔

▶ اگر ایرنگ سوئچ نہیں کھولا گیا ہے تو ، اوپری اور نچلے منقطع کنیکٹر بند نہیں ہوسکتے ہیں ، جو کمرنگ تار کو اوپری اور نچلے منقطع کنندگان کو بند کرنے سے روک سکتے ہیں۔


● XGN □ -12/07D آؤٹ لائن ڈرائنگ

Box Type Fixed Metal Closed Switchgear

● XGN □ -12 (بائی پاس کیبل کا آؤٹ لیٹ) آؤٹ لائن ڈرائنگ

Box Type Fixed Metal Closed Switchgear


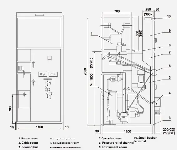
● مجموعی طول و عرض کی تنصیب کی ڈرائنگ

Box Type Fixed Metal Closed SwitchgearBox Type Fixed Metal Closed Switchgear


ہاٹ ٹیگز: باکس ٹائپ فکسڈ میٹل بند سوئچ گیئر ، چینی الیکٹریکل سپلائر ، کیکسن فیکٹری
انکوائری بھیجیں۔
رابطہ کی معلومات
  • پتہ

    نمبر 228 ویشکی روڈ ، ییوکنگ اکنامک ڈویلپمنٹ زون ، وینزہو سٹی ، جیانگ صوبہ ، چین

  • ٹیلی فون

    +86-15258076596

کیبل برانچ باکس ، ہائی وولٹیج سوئچ گیئر ، لو وولٹیج سوئچ گیئر یا قیمت کی فہرست کے بارے میں پوچھ گچھ کے ل please ، براہ کرم اپنا ای میل ہمارے پاس چھوڑیں اور ہم 24 گھنٹوں کے اندر اندر رابطے میں ہوں گے۔
X
ہم آپ کو براؤزنگ کا بہتر تجربہ پیش کرنے ، سائٹ ٹریفک کا تجزیہ کرنے اور مواد کو ذاتی نوعیت دینے کے لئے کوکیز کا استعمال کرتے ہیں۔ اس سائٹ کا استعمال کرکے ، آپ کوکیز کے ہمارے استعمال سے اتفاق کرتے ہیں۔ رازداری کی پالیسی
مسترد قبول کریں